L0T 11 History DriveOxford, MA 01540
Due to the health concerns created by Coronavirus we are offering personal 1-1 online video walkthough tours where possible.


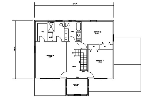
Welcome to Oxford - New Construction! SIMILAR HOME TO BE BUILT. This is a MODERN FARMHOUSE RANCH design offers a warm and cozy feel. This development is located on a CUL-DE-SAC site bordering Army Core of Engineer's Land. Come meet with the builder, and make your home "truly yours" by adding your own personal touches! Three Bedrooms, 2/5 Baths, 2 Car garage and a Generous Kitchen Allowance. EV - electric car Hook-up. Underground utilities, town water and private sewer. Heat is electric heat pump/mini split and central air. Purchase this home with 5% down with Purchase and Sales acceptance. Minutes to 290, Rt. 20, 12, 56, Mass Pike.
| 2 months ago | Listing updated with changes from the MLS® | |
| 2 months ago | Price changed to $699,900 | |
| 2 years ago | Status changed to Pending | |
| 2 years ago | Listing first seen on site |
The property listing data and information, or the Images, set forth herein were provided to MLS Property Information Network, Inc. from third party sources, including sellers, lessors, landlords, and public records, and were compiled by MLS Property Information Network, Inc. The property listing data and information, and the Images, are for the personal, non-commercial use of consumers having a good faith interest in purchasing, leasing or renting listed properties of the type displayed to them and may not be used for any purpose other than to identify prospective properties which such consumers may have a good faith interest in purchasing, leasing or renting. MLS Property Information Network, Inc. and its subscribers disclaim any and all representations and warranties as to the accuracy of the property listing data and information, or as to the accuracy of any of the Images, set forth herein.
Last checked 2025-12-08 04:42 PM UTC


Did you know? You can invite friends and family to your search. They can join your search, rate and discuss listings with you.